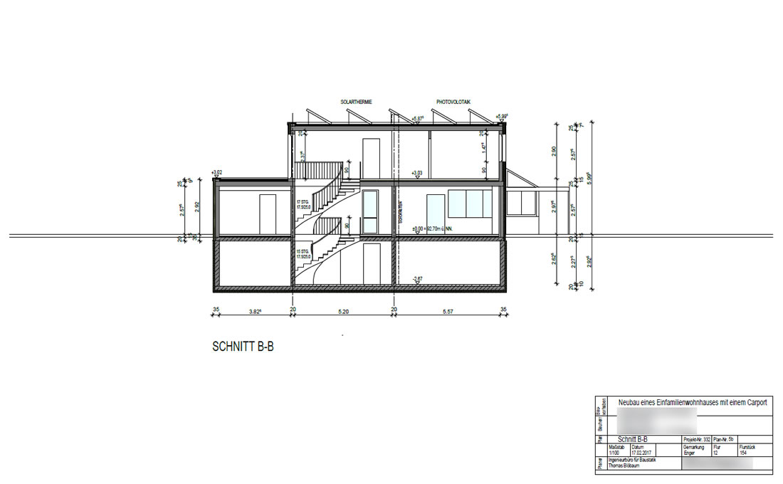
Bau eines Einfamilienhaus in Massivholzbauweise bei Bielefeld
- An- und Umbau Einfamilienhaus (Dachaufstockung)
- KfW Effizienzhaus – Sanierung
- allergikergerechte Bauweise (besonders wohngesund)
- Wand- und Deckenkonstruktion in
wohngesunder Holzrahmenbauweise - Dachkonstruktion als Pfettendach
- hochwertige Kunststofffenster
- moderne Alu-Rollladenelemente
- hochwertige Kunststoff-Wohndachfenster
- Außenverschattung mit Raffstoren-Elementen
- ökologische Fassadendämmung (Holzweichfaser)
- diffusionsoffener Außenputz (Kalkputz)
- Dacheindeckung aus Tondachziegel
- moderner Kaminofen
- sparsame Gas-Brennwertheizung
- schöne Eiche-Massivholztreppe
- moderner großformatige Fliesenboden
- besonders moderne Sanitärausstattung
- glatte Wandoberflächen (Malervlies)
- ökologische Wand- und Deckenfarben
