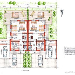
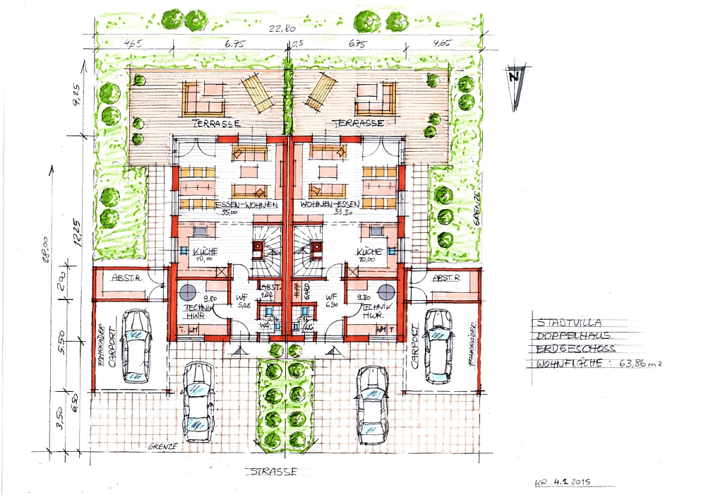
Konzeption und Planung Holzrahmenbauweise Bielefeld Nordrein-Westfahlen
- allergikergerechte Bauweise (besonders wohngesund)
- Komplett energieautarkes Wohnhaus
- Wandkonstruktion in wohngesunder Holzrahmenbauweise
- Deckenkonstruktion als Massivholzdecke (sichtbar)
- Dachkonstruktion als Pfettendach
- Infrarotheizung (Redwell)
- Dacheindeckung aus Tondachziegel
- hochwertige farbige Kunststoff-Fenster
- Kaminofen
- Massivholzdielenböden
- Warmwasserwärmepumpe
- PV – Anlage mit Speicher
