Konzeption und Planung Massivholzhaus Bielefeld Nordrhein-Westfalen
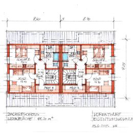
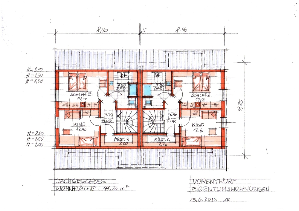
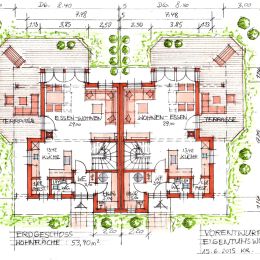
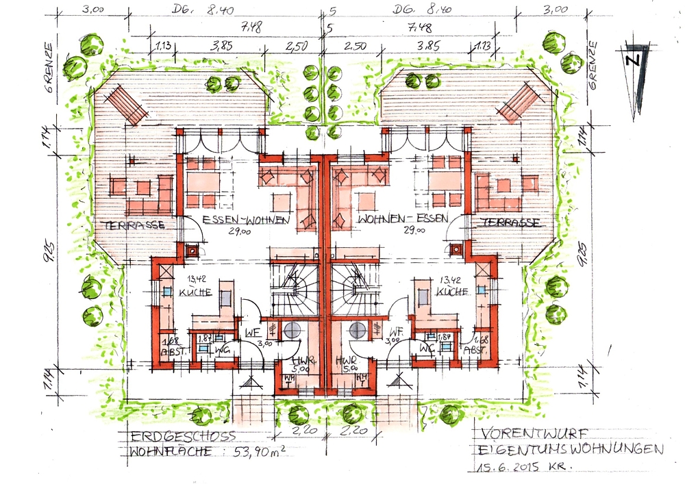
Neubau Eigentumswohnungen (2-Familienhaus) in Thoma Holz100 Massivholzbauweise
- Neubau allergikergerechter Eigentumswohnungen
- Thoma Holz100 Massivholzbauweise
- Fassadendämmung (Holzweichfaser)
- diffusionsoffener Außenputz (Kalkputz)
- Dacheindeckung aus Tondachziegel
- hochwertige farbige Holzfenster
- Kaminofen
- Massivholzdiele als Bodenbelag
- Warmwasserwärmepumpe
- PV – Anlage mit Speicher
- Dachdämmung aus Hanf
- wohngesunde Infrarotheizung (Strahlungswärme)
- komplett energieautarke Bauweise
