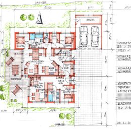
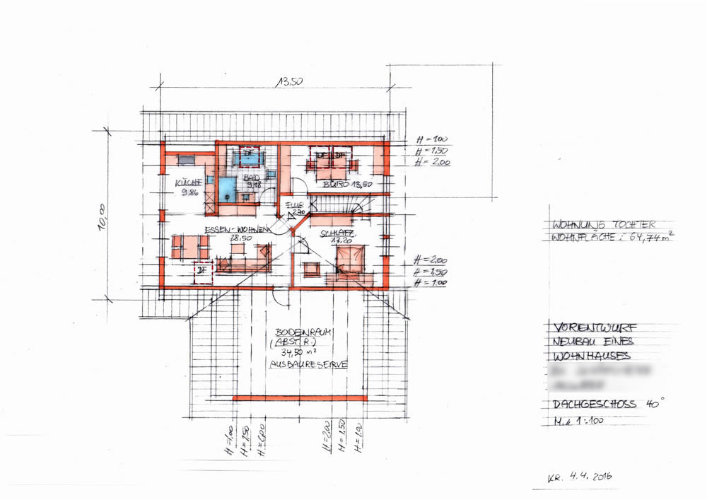
Planungen - Massivholzhaus mit einem Carport
- Neubau Zweifamilienhaus mit Carport
- KfW 40 Effizienzhaus
- allergikergerechte Bauweise (besonders wohngesund)
- Wand- und Deckenkonstruktion
in wohngesunder Holzrahmenbauweise - Deckenkonstruktion als Massivholzdecke (sichtbar)
- Dachkonstruktion als Pfettendach
- Dacheindeckung aus Tondachziegel
- hochwertige farbige Kunststoff-Fenster
- Erdwärmepumpe mit Kühlung
- Fußbodenheizung
- Komplette Fliesenböden
