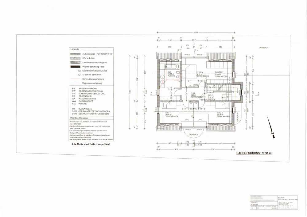
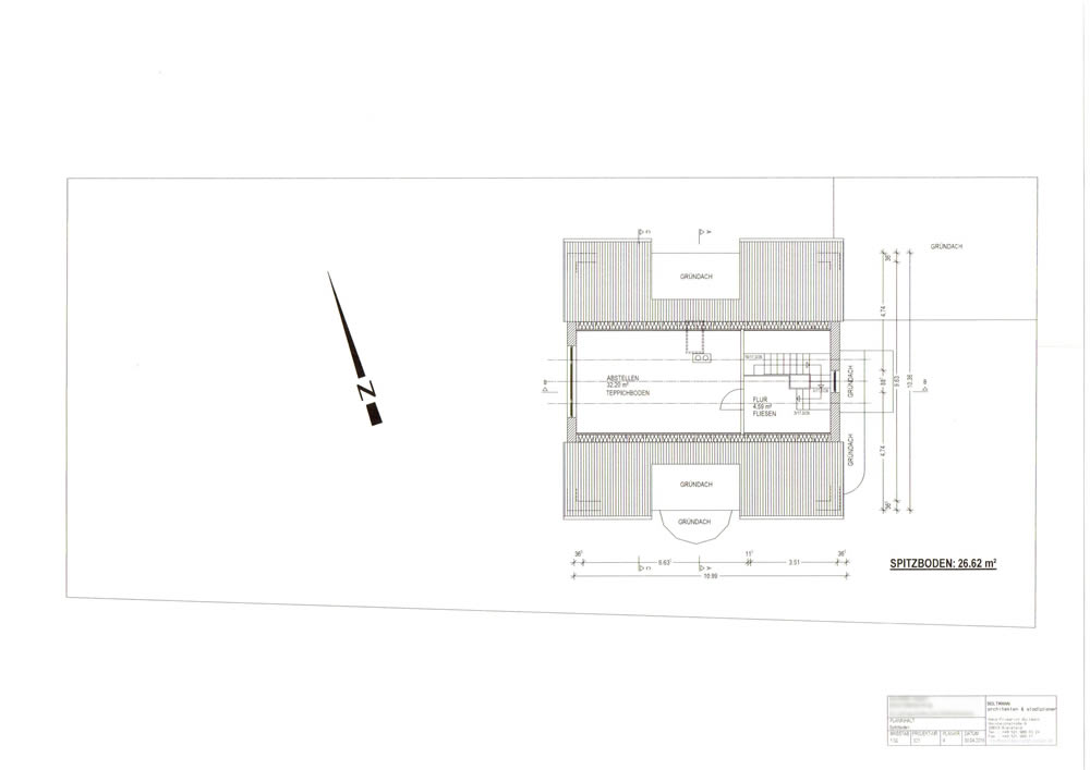
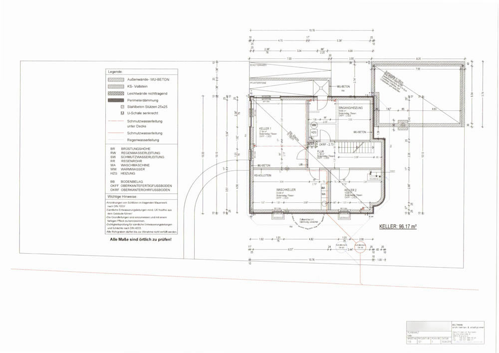
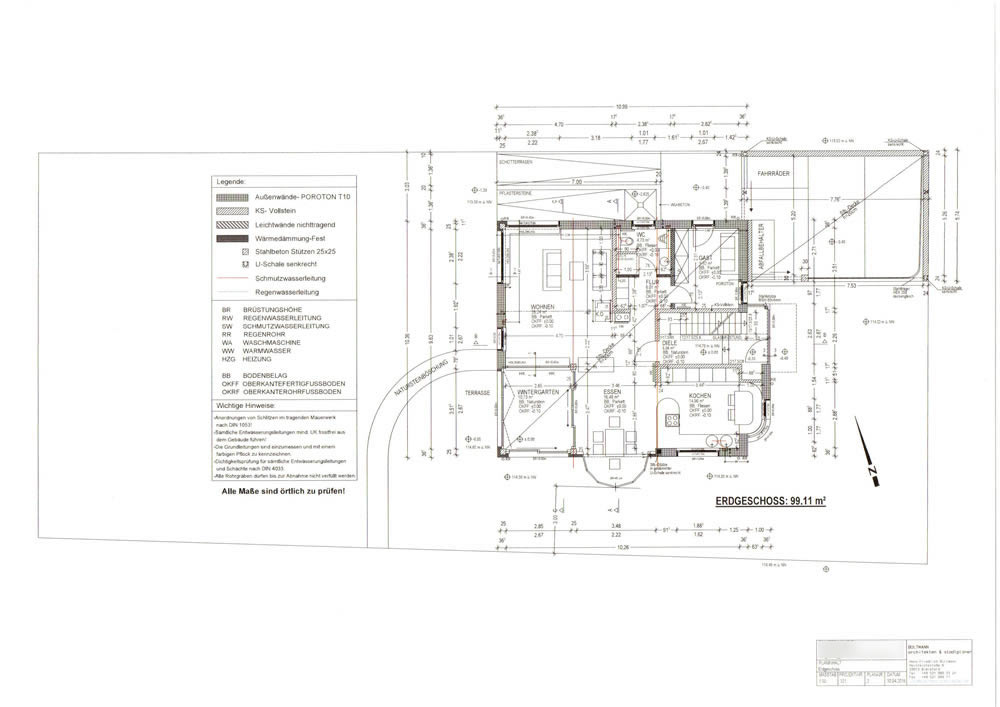
Planungen - Massivholzhaus Bielefeld Einfamilienhaus
- Neubau Einfamilienhaus
- Wand- und Deckenkonstruktion
in Massivholzbauweise Holz 100 - Dachkonstruktion als Pfettendach
- Fassadendämmung (Holzweichfaser)
- diffusionsoffener Außenputz (Kalkputz)
- hochwertige Lärchen-Holzfenster mit Raffstore
- Tondachziegeleindeckung
- Massivholzdielenboden
- Kaminofen
- Gasbrennwert-Heizung
- hochwertige Lärchen-Holzfenster mit Raffstore
- Lärchen-Stülpschalung (Giebelspitzen)
- Flachdachbegrünung
- Massivholztreppe (Eiche)
